挑空的客厅为客厅保留了空间感,剪掉了多余的装饰,使整个居室看上去简单了许多。同时将欧式与法式元素混搭形成了沉稳大气的本案效果图。
装修请加微信18595705990

客厅

餐厅

室内旋梯

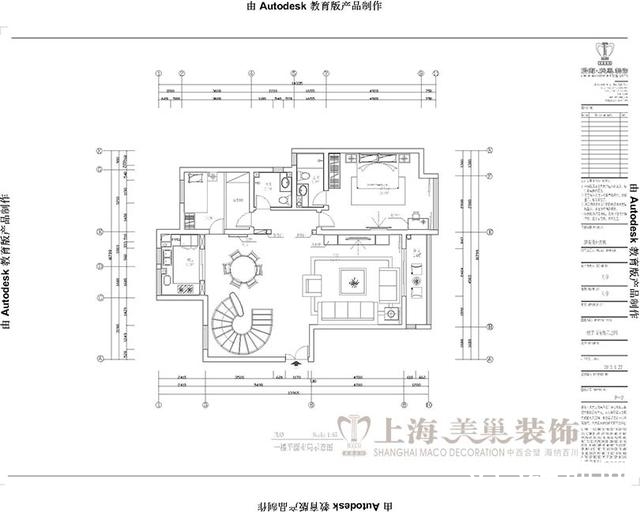
一层平面布局

二楼视角客厅全景
娱乐圈中被包养的女星数不胜数,包养男人的女星也数不胜数,但是很多女星被包养后还死 ...
讲到女性做爱至高潮算得上是一件很神秘的事情,因为男女之间的区别,男性在高潮时伴有 ...
近日,一美国19岁女孩在图书馆里面不管不顾公众场所,公然自慰事件引起了网友们的关注 ...
昨天,院长写了一篇关于电影《大只佬》的原版解析。这部当年囊括23届金像奖多个奖项的 ...
据韩国媒体日刊体育报道,《RunningMan》改版,金钟国被裁,宋智孝也被节目组抛弃。宋 ...