最近随着反腐大戏电视据,《人民的名义》的热播,里面一系列的豪宅也陆续的曝光,如赵德海的别墅美式的装修风格,搭配圆形拱门,罗马柱子,吊灯,怎一个奢华大气了得呀,更不用说惊人的冰箱里面藏钱,连墙都是钱堆砌的。
一般我们说到豪装一般都会想到,古典的中式,美式,欧式等等奢华的装修,接下来我们一起来欣赏一下来自西充自建别墅的美式风格案例

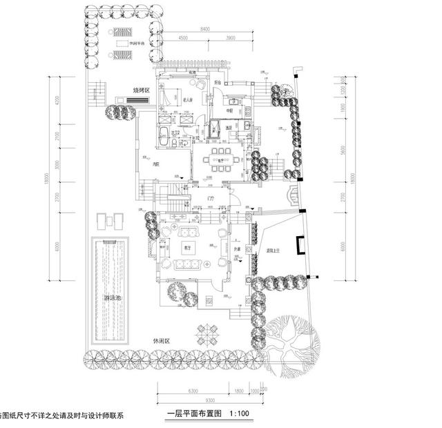
图上是来自西充自建别墅的一楼平面布局图纸

电视剧人民的名义引发的一系列豪装曝光美式风格书房案例

电视剧人民的名义引发的一系列豪装曝光美式风格餐厅案例


电视剧人民的名义引发的一系列豪装曝光卧室案例


印花的墙纸搭配木质的家具给人以古朴的感觉


拱门,楼梯给人感觉奢华大气

家具的选择跟硬装上面的装修细节也是相呼应,深色复古整体感觉和谐

本方案为美式乡村风格在室内环境中力求表现悠闲、舒畅、自然的田园生活情趣,也常运用天然木、石、藤、竹等材质质朴的纹理。巧于设置室内绿化,创造自然、简朴、高雅的氛围。
如果你也有南充新房装修,喜欢这套美式风格案例或者想要了解更多的装修设计
欢迎加微信:18681786409 一起探讨,让你的房子变成家
娱乐圈中被包养的女星数不胜数,包养男人的女星也数不胜数,但是很多女星被包养后还死 ...
讲到女性做爱至高潮算得上是一件很神秘的事情,因为男女之间的区别,男性在高潮时伴有 ...
近日,一美国19岁女孩在图书馆里面不管不顾公众场所,公然自慰事件引起了网友们的关注 ...
昨天,院长写了一篇关于电影《大只佬》的原版解析。这部当年囊括23届金像奖多个奖项的 ...
据韩国媒体日刊体育报道,《RunningMan》改版,金钟国被裁,宋智孝也被节目组抛弃。宋 ...